INFORMATIONS

Une chapelle désacralisée en ruine et sa porterie dépendant de l’abbaye de Jumièges sont réinvesties par une association qui les transforme en centre écologique, et pédagogique, pour les jeunes de Duclair. Une extension technique est construite en paille et terre. Le tout s’inscrit dans un paysage de clos-masure réinventé.

Lieu

:

Duclair

Date

:

2012

Marché

:

Public

Budget

:

500 K€

Vue satellite
Façade nord
Façade nord-Est existant
Façade Nord-Ouest existant
Façade Sud-Est existant
Façade Sud-Ouest existant
Plan masse projet
Plan masse site
Coupe
Coupe
Coupe
Coupe
Façade Nord-Est
Façade Nord-Ouest
Façade Sud-Est
Façade Sud-Ouest
Photomontage
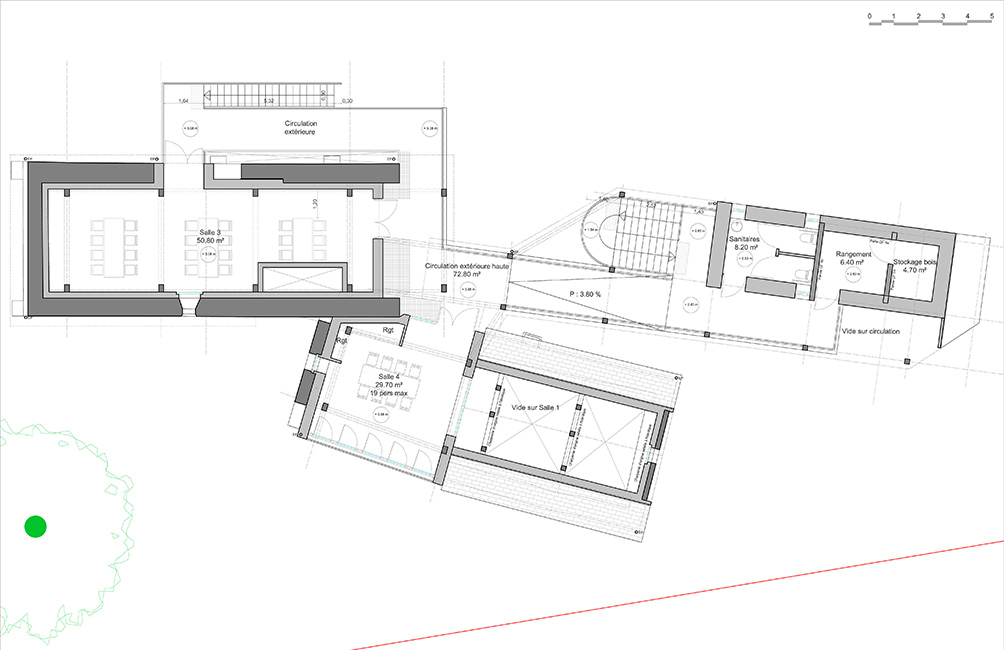
Plan - Rez-de-Chaussée
Plan - Étage
Croquis
Croquis
Croquis
Croquis
Croquis - site
Croquis - site
Croquis - site
Programme
Visite
Chantier
Chantier
Chantier
Chantier
Chantier
Chantier
Photographie de l'existant
Photographie de l'existant
Photographie de l'existant
Photographie de l'existant
Photographie de l'existant
Photographie de l'existant
Photographie de l'existant
Maquette
Maquette
Maquette
Échelle du territoire
No items found.