INFORMATIONS

Mise en valeur des prestations anciennes de cette maison mitoyenne « double » des faubourgs de Libourne. Dans le volume existant, suspendre une chambre d’enfant à la charpente fait gagner une pièce. Dans le jardin, surélever une dépendance et l’isoler en terre allégée génère un bureau.

Lieu

:

Libourne

Date

:

2015

Marché

:

Privé

Budget

:

40 K€

Vue satellite
Coupe transversale
Coupe longitudinale
Façade sud
Façade nord
Plan - Étage
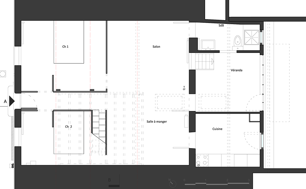
Plan du rez-de-chaussée
Croquis
Plan de la toiture
Croquis
Croquis
Croquis fenêtre
Chantier
Chantier
Chantier
Avant
Chantier - Torchi
Ciel
Abstraction
La tour
Lumière
Chantier - Torchi
Chantier - Torchi
Vue intérieure
Détail - sol
No items found.